Дом из бревна под ключ — проект Д1
Дом из бревна под ключ, строим во всех городах Удмуртии. Есть различные комплектации: стандарт, комфорт и премиум. Мы гарантируем качество материалов, сборки и отделки наших бань.
1 008 000 ₽ – 5 670 000 ₽Диапазон цен: 1 008 000 ₽ – 5 670 000 ₽
Дом из бревна — это тепло, уют и природная эстетика для жизни в гармонии с природой. «Душевные Бани» строим деревянные дома из бревна под ключ в Удмуртии и Ижевске. Используем качественные материалы и проверенные технологии.
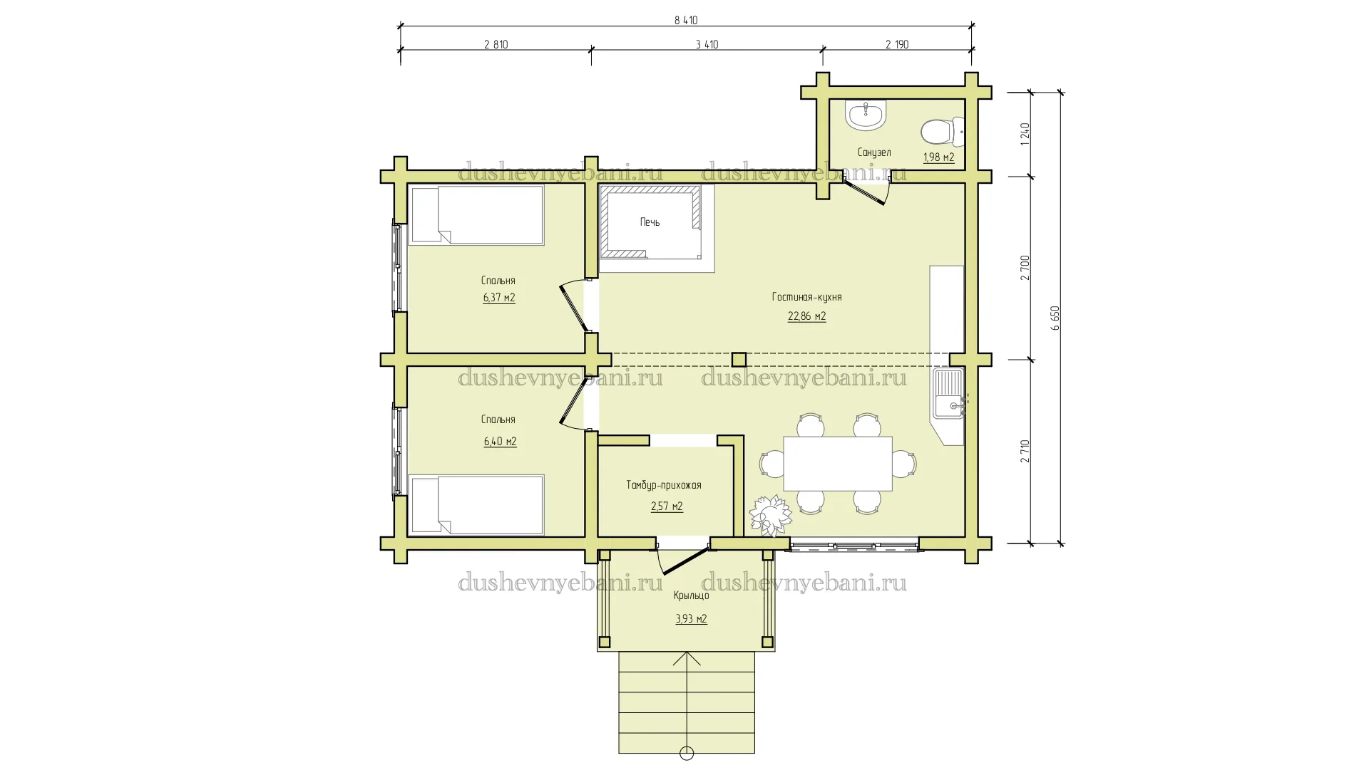
В каталоге есть одноэтажные дома из бревна и проекты с мансардой. Каждый дом из бревен отличается прочностью, отличной теплоизоляцией и долговечностью. Вы можете купить готовый проект или заказать индивидуальное решение.
Узнайте актуальную Цену строительства и выберите подходящий вариант. «Душевные Бани» гарантируем точные сроки, профессиональную сборку и комфорт на долгие годы. Ваш дом из бревна станет идеальным семейным жилищем.
| Размер дома | 4×4 мОчень компактный домик. Подходит как дачный вариант или временное жильё, обычно без полноценного зонирования., 4×5 мНебольшой дачный дом. Можно разместить кухонную зону и спальное место, но пространство ограничено., 4×6 мПопулярный компактный формат. Уже возможно сделать отдельную комнату и небольшую кухню-гостиную., 5×5 мКвадратный небольшой дом. Удобен для базовой планировки: жилая зона, кухня и место для отдыха., 5×6 мОптимальный вариант для дачи. Можно разделить пространство на 1–2 комнаты и добавить санузел., 5×7 мУвеличенная площадь для более комфортного проживания. Появляется место для полноценной спальни и гостиной., 6×6 мОдин из самых востребованных размеров. Универсальный дом для дачи или постоянного проживания небольшой семьи., 6×7 мЧуть больше свободы в планировке. Можно сделать отдельные комнаты и удобную кухню., 6×8 мКомфортный дом среднего размера. Подходит для семьи: несколько комнат, кухня-гостиная, санузел., 7×7 мКвадратный дом с хорошим балансом площади. Удобен для продуманной планировки с несколькими зонами., 7×8 мРасширенный вариант. Позволяет сделать 2–3 комнаты и просторную общую зону., 8×10 мКрупный дом для семьи. Много пространства для отдельных комнат и комфортной жизни., 8×8 мПолноценный жилой дом. Подходит для постоянного проживания семьи, часто используется с мансардой., 8×9 мПросторный дом с возможностью гибкой планировки. Удобен для 2–3 спален и большой гостиной., 9×10 мФормат полноценного загородного дома. Подходит для постоянного проживания, можно реализовать сложные планировки., 9×9 мБольшой квадратный дом. Часто включает несколько спален, кухню-гостиную и дополнительные помещения. |
|---|---|
| Материал кровли | Гибкая черепицаМягкий кровельный материал в виде отдельных элементов. Используется на крышах сложной формы, обеспечивает хорошую герметичность и тихую эксплуатацию., МеталлочерепицаСтальной лист с защитным покрытием, имитирующий форму черепицы. Лёгкий материал с аккуратным внешним видом, подходит для большинства скатных крыш., ОндулинЛёгкие волнистые листы на основе целлюлозы и битума. Прост в монтаже, подходит для бань и небольших строений., ПрофнастилПрофилированные металлические листы с высокой прочностью. Практичное решение для простых крыш, хорошо выдерживает снег и дождь., Фальцевая кровляМеталлические листы, соединённые специальным замком (фальцем). Обеспечивает высокую герметичность и подходит для современных и классических домов., ЧерепицаМатериал из глины или песка с цементом. Обладает высокой долговечностью и классическим внешним видом. |
| Тип крыши | ДвускатнаяКлассическая форма с двумя скатами. Надёжно отводит воду и снег, подходит для большинства домов и бань., МансарднаяСложная форма с изломами, позволяет сделать полноценное жилое помещение под крышей., ОдноскатнаяКрыша с одним уклоном. Простая конструкция, хорошо подходит для небольших бань и хозяйственных построек., ЧетырёхскатнаяИмеет четыре ската, все стороны закрыты еще называют вальмовая. Устойчива к ветру, выглядит аккуратно и завершённо. |
| Терраса | Без террасы, Закрытая, Открытая |
| Мансарда | Да, Нет |
| Наименование | Стандарт | Комфорт | Премиум |
|---|---|---|---|
| 🏠 Фундамент и основание | |||
| Фундамент (ленточный / свайный под ключ) | ✓ | ✓ | ✓ |
| Цоколь (облицовка / гидроизоляция) | ✓ | ✓ | ✓ |
| Отмостка (бетонная / декоративная) | — | — | ✓ |
| 🪵 Сруб и кровля | |||
| Сруб (бревно / брус ручной или камерной сушки) | ✓ | ✓ | ✓ |
| Крыша (стропильная система, кровельный материал) | ✓ | ✓ | ✓ |
| Гидроизоляция кровли (без утепления) | — | — | — |
| Водосточная система (металл / пластик) + снегозадержатели | — | — | ✓ |
| 🪟 Окна и двери | |||
| Окна (двухкамерные стеклопакеты) + входная дверь | ✓ | ✓ | ✓ |
| 🛠️ Черновая отделка | |||
| Черновые полы (доска 25–30 мм, лаги) | ✓ | ✓ | — |
| Черновой потолок (обрешетка + доска) | ✓ | ✓ | — |
| ✨ Чистовая отделка интерьера и фасада | |||
| Чистовые полы (шпунтованная доска сосна / лиственница) | — | ✓ | — |
| Чистовые полы (шпунтованная доска лиственница премиум) | — | — | ✓ |
| Чистовой потолок (вагонка хвойная) | — | ✓ | — |
| Чистовой потолок (вагонка липовая / осина) | — | — | ✓ |
| Фронтоны (обшиты доской / имитация бруса) | ✓ | — | — |
| Фронтоны и подшивы (вагонка хвойная сорт А) | — | ✓ | — |
| Фронтоны и подшивы (блок-хаус / вагонка премиум) | — | — | ✓ |
| Внутренняя отделка парной (вагонка осина / липа) | — | — | ✓ |
| 🌲 Полог / предбанник (отделка) | |||
| Полог сосновый (доска обрезная) | ✓ | — | — |
| Полог хвойный (вагонка, сухая строганая) | — | ✓ | — |
| Полог липовый (вагонка экстра, антисептирование) | — | — | ✓ |
| 🔥 Печь и дымоход | |||
| Печь бюджетного сегмента (сталь, 4–6 кВт) | ✓ | — | — |
| Печь + дымоход (средний сегмент, с баком / теплообменником) | — | ✓ | — |
| Печь премиум (чугун / нерж. сендвич-дымоход, каменка) | — | — | ✓ |
| Защита стен вокруг печи (кирпич / минерит + экран) | — | ✓ | ✓ |
| 💨 Вентиляция и воздухообмен | |||
| Приточная/вытяжная вентиляция (клапаны, задвижки) | — | ✓ | ✓ |
| Принудительная вентиляция с дефлекторами / вентилятором | — | — | ✓ |
| ⚡ Коммуникации | |||
| Электричество (вводной щит, кабель по стенам, розетки, выключатели базовые) | ✓ | — | — |
| Электричество (полная разводка, автоматы, светильники, бра, дизайн-розетки) | — | ✓ | — |
| Электричество (премиум-оснащение: LED-подсветка, наружное освещение, резерв) | — | — | ✓ |
| Канализация (внутренняя разводка ПП, вывод наружу, септик локальный) | ✓ | ✓ | ✓ |
| Водоснабжение (разводка труб, смесители, умывальник, душ) | — | — | ✓ |
| Горячее водоснабжение (накопительный бойлер / проточный) | — | — | Опционально |
| 🧺 Дополнительные опции | |||
| Лестница на второй этаж / крыльцо с навесом | — | ✓ | ✓ |
| Теплоизоляция пола, потолка (минвата 100–150 мм) | — | ✓ | ✓ |
| Пароизоляция парной и моечной (фольгированная) | — | ✓ | ✓ |
