Дом из бревна 10 на 10.5 под ключ
Дом из бревна размером 10 на 10.5 метров под ключ, строим во всех городах Удмуртии. Есть различные комплектации: стандарт, комфорт и премиум. Мы гарантируем качество материалов, сборки и отделки наших домов.
6 825 000 ₽
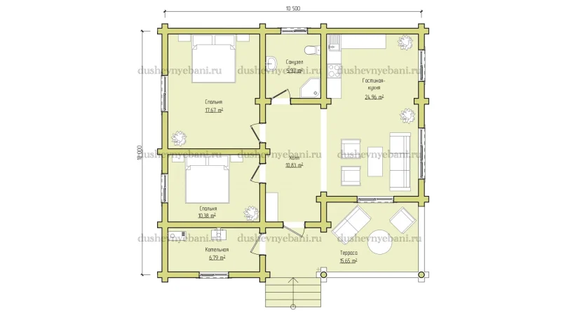
Дом из бревна 10 на 10.5 м — это просторный и светлый деревянный дом для большой семьи. «Душевные Бани» строим такие дома под ключ недорого в Удмуртии и Ижевске. Площадь позволяет разместить все необходимые зоны комфортно.
Проект продуман и удобен, 2 большие спальни, просторную гостиную и кухню и другие помещения. Деревянный дом обеспечивает отличную теплоизоляцию и эстетику. Можно купить готовый проект, заказать или построить с индивидуальными изменениями.
Узнайте актуальную цену и закажите строительство. «Душевные Бани» гарантируем качество материалов, точную сборку и долговечность. Ваш дом станет надёжным семейным гнёздышком на долгие годы.
| Материал кровли | Гибкая черепицаМягкий кровельный материал в виде отдельных элементов. Используется на крышах сложной формы, обеспечивает хорошую герметичность и тихую эксплуатацию., МеталлочерепицаСтальной лист с защитным покрытием, имитирующий форму черепицы. Лёгкий материал с аккуратным внешним видом, подходит для большинства скатных крыш., ОндулинЛёгкие волнистые листы на основе целлюлозы и битума. Прост в монтаже, подходит для бань и небольших строений., ПрофнастилПрофилированные металлические листы с высокой прочностью. Практичное решение для простых крыш, хорошо выдерживает снег и дождь., Фальцевая кровляМеталлические листы, соединённые специальным замком (фальцем). Обеспечивает высокую герметичность и подходит для современных и классических домов., ЧерепицаМатериал из глины или песка с цементом. Обладает высокой долговечностью и классическим внешним видом. |
|---|---|
| Тип крыши | ДвускатнаяКлассическая форма с двумя скатами. Надёжно отводит воду и снег, подходит для большинства домов и бань., МансарднаяСложная форма с изломами, позволяет сделать полноценное жилое помещение под крышей., ОдноскатнаяКрыша с одним уклоном. Простая конструкция, хорошо подходит для небольших бань и хозяйственных построек., ЧетырёхскатнаяИмеет четыре ската, все стороны закрыты еще называют вальмовая. Устойчива к ветру, выглядит аккуратно и завершённо. |
| Терраса | Без террасы, Закрытая, Открытая |
| Мансарда | Да, Нет |
| Наименование | Стандарт | Комфорт | Премиум |
|---|---|---|---|
| 🏠 Фундамент и основание | |||
| Фундамент (ленточный / свайный под ключ) | ✓ | ✓ | ✓ |
| Цоколь (облицовка / гидроизоляция) | ✓ | ✓ | ✓ |
| Отмостка (бетонная / декоративная) | — | — | ✓ |
| 🪵 Сруб и кровля | |||
| Сруб (бревно / брус ручной или камерной сушки) | ✓ | ✓ | ✓ |
| Крыша (стропильная система, кровельный материал) | ✓ | ✓ | ✓ |
| Гидроизоляция кровли (без утепления) | — | — | — |
| Водосточная система (металл / пластик) + снегозадержатели | — | — | ✓ |
| 🪟 Окна и двери | |||
| Окна (двухкамерные стеклопакеты) + входная дверь | ✓ | ✓ | ✓ |
| 🛠️ Черновая отделка | |||
| Черновые полы (доска 25–30 мм, лаги) | ✓ | ✓ | — |
| Черновой потолок (обрешетка + доска) | ✓ | ✓ | — |
| ✨ Чистовая отделка интерьера и фасада | |||
| Чистовые полы (шпунтованная доска сосна / лиственница) | — | ✓ | — |
| Чистовые полы (шпунтованная доска лиственница премиум) | — | — | ✓ |
| Чистовой потолок (вагонка хвойная) | — | ✓ | — |
| Чистовой потолок (вагонка липовая / осина) | — | — | ✓ |
| Фронтоны (обшиты доской / имитация бруса) | ✓ | — | — |
| Фронтоны и подшивы (вагонка хвойная сорт А) | — | ✓ | — |
| Фронтоны и подшивы (блок-хаус / вагонка премиум) | — | — | ✓ |
| Внутренняя отделка парной (вагонка осина / липа) | — | — | ✓ |
| 🌲 Полог / предбанник (отделка) | |||
| Полог сосновый (доска обрезная) | ✓ | — | — |
| Полог хвойный (вагонка, сухая строганая) | — | ✓ | — |
| Полог липовый (вагонка экстра, антисептирование) | — | — | ✓ |
| 🔥 Печь и дымоход | |||
| Печь бюджетного сегмента (сталь, 4–6 кВт) | ✓ | — | — |
| Печь + дымоход (средний сегмент, с баком / теплообменником) | — | ✓ | — |
| Печь премиум (чугун / нерж. сендвич-дымоход, каменка) | — | — | ✓ |
| Защита стен вокруг печи (кирпич / минерит + экран) | — | ✓ | ✓ |
| 💨 Вентиляция и воздухообмен | |||
| Приточная/вытяжная вентиляция (клапаны, задвижки) | — | ✓ | ✓ |
| Принудительная вентиляция с дефлекторами / вентилятором | — | — | ✓ |
| ⚡ Коммуникации | |||
| Электричество (вводной щит, кабель по стенам, розетки, выключатели базовые) | ✓ | — | — |
| Электричество (полная разводка, автоматы, светильники, бра, дизайн-розетки) | — | ✓ | — |
| Электричество (премиум-оснащение: LED-подсветка, наружное освещение, резерв) | — | — | ✓ |
| Канализация (внутренняя разводка ПП, вывод наружу, септик локальный) | ✓ | ✓ | ✓ |
| Водоснабжение (разводка труб, смесители, умывальник, душ) | — | — | ✓ |
| Горячее водоснабжение (накопительный бойлер / проточный) | — | — | Опционально |
| 🧺 Дополнительные опции | |||
| Лестница на второй этаж / крыльцо с навесом | — | ✓ | ✓ |
| Теплоизоляция пола, потолка (минвата 100–150 мм) | — | ✓ | ✓ |
| Пароизоляция парной и моечной (фольгированная) | — | ✓ | ✓ |






